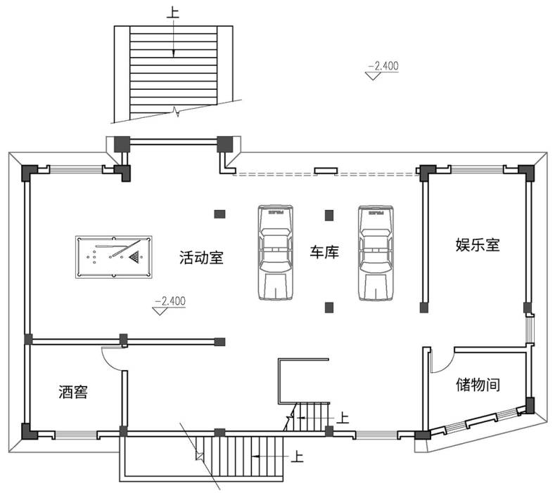
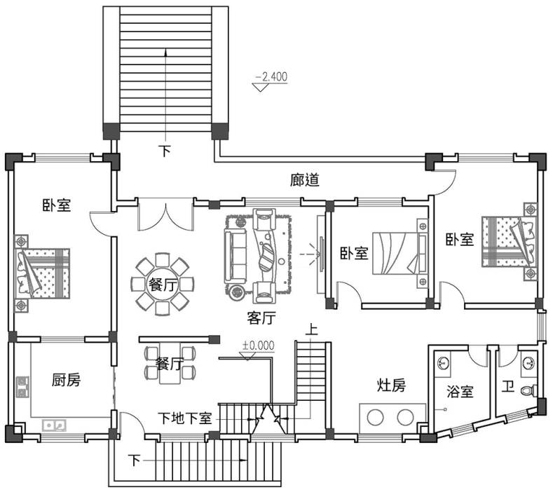
全部图纸
一层房子
二层房子
三层房子
四层或以上
双拼房子
当前位置:
网站首页
>
图纸案例
>
案例详情
上一篇:浙江丽水苗家农村别墅自建房设计
下一篇:江西赣州顾家农村别墅自建房设计
看了又看
安徽巢湖严家农村别墅自建房设计
浙江衢州杨家农村别墅自建房设计
安徽毫州李家农村别墅自建房设计
广东中山汪家农村别墅自建房设计
浙江杭州王家欧式风格别墅自建房设计图纸喜天下建筑设计
河北邯郸方家农村别墅自建房设计
贵州铜仁冉家欧式风格别墅自建房设计图纸喜天下建筑设计
广西梧州钱家农村别墅自建房设计
经典户型
湖南常德庞家农村别墅自建房设计
江西南昌顾家农村别墅自建房设计
广东汕头白家农村别墅自建房设计
湖北孝感金家农村别墅自建房设计
海南定安丁家农村别墅自建房设计
湖南衡阳单家农村别墅自建房设计
湖南衡阳肖家新中式风格别墅自建房设计图纸喜天下建筑设计
广西梧州赵家农村别墅自建房设计
我要图纸
加设计师微信 15888225025
专业的设计团队,最实惠的价格,我们为您量身定制,专属于您的房子设计。
我要施工
加设计师微信 15888225025
专业的设计团队,最实惠的价格,我们为您量身定制,专属于您的房子设计。
s.parentNode.insertBefore(_53code, s);})();