全部图纸
一层房子
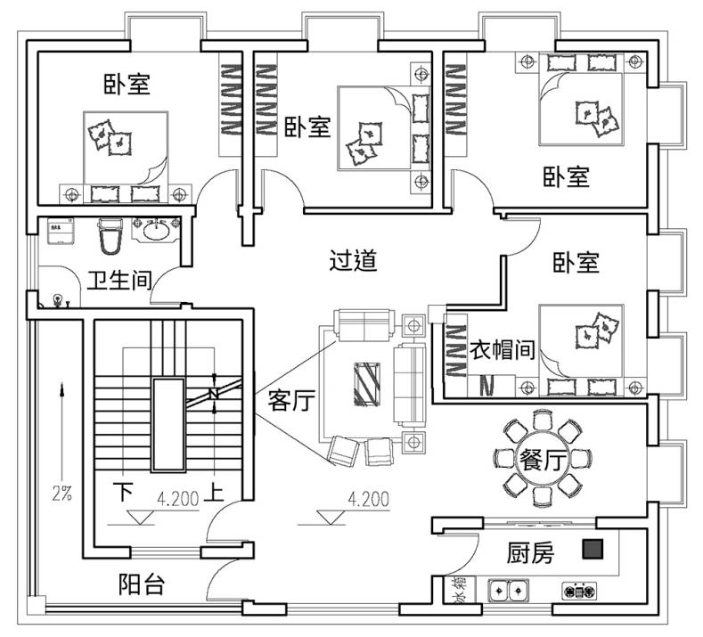
二层房子
三层房子
四层或以上
双拼房子
当前位置:
网站首页
>
图纸案例
>
案例详情
上一篇:福建顺昌县丁家农村别墅自建房设计
下一篇:海南白沙庞家农村别墅自建房设计
看了又看
湖北荆门刘家新中式风格别墅自建房设计图纸喜天下建筑设计
山东潍坊范家农村别墅自建房设计
湖北孝感周家农村别墅自建房设计
湖南娄底秦家农村别墅自建房设计
云南德宏齐家农村别墅自建房设计
山东日照方家农村别墅自建房设计
浙江绍兴卫家农村别墅自建房设计
安徽池州何家新中式风格别墅自建房设计图纸喜天下建筑设计
经典户型
浙江杭州夏家农村别墅自建房设计
河北河间杨家现代风格别墅自建房设计图纸喜天下建筑设计
江西都昌聂家欧式风格别墅自建房设计图纸喜天下建筑设计
四川唐总中式风格别墅自建房设计图纸喜天下建筑设计
湖南湘西童家农村别墅自建房设计
四川雅安胡家农村别墅自建房设计
福建武夷山市高家农村别墅自建房设计
安徽芜湖凌家农村别墅自建房设计
我要图纸
加设计师微信 15888225025
专业的设计团队,最实惠的价格,我们为您量身定制,专属于您的房子设计。
我要施工
加设计师微信 15888225025
专业的设计团队,最实惠的价格,我们为您量身定制,专属于您的房子设计。
s.parentNode.insertBefore(_53code, s);})();