全部图纸
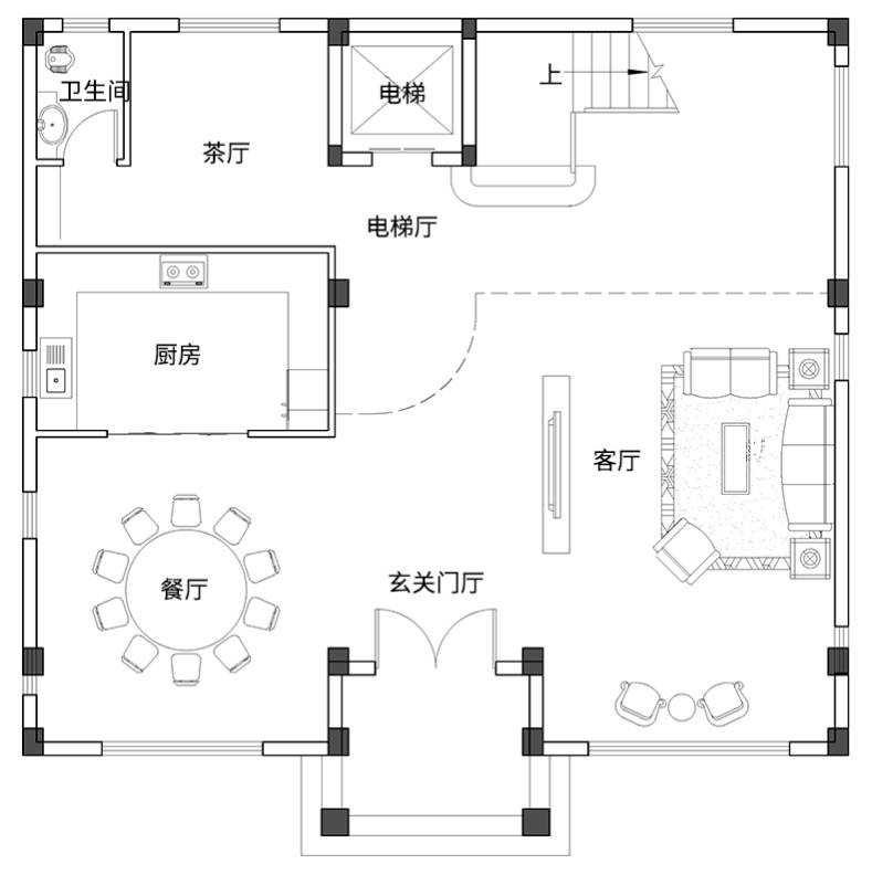
一层房子
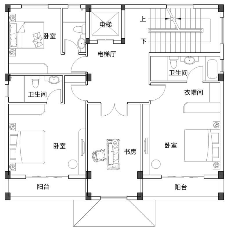
二层房子
三层房子
四层或以上
双拼房子
当前位置:
网站首页
>
图纸案例
>
案例详情
上一篇:福建南平水家农村别墅自建房设计
下一篇:福建邵武市成家农村别墅自建房设计
看了又看
福建崇安市常家农村别墅自建房设计
湖南娄底宋家欧式风格别墅自建房设计图纸喜天下建筑设计
山东青岛花家农村别墅自建房设计
甘肃甘南孙家农村别墅自建房设计
重庆渝北谢家新中式风格别墅自建房设计图纸喜天下建筑设计
安徽合肥曹家农村别墅自建房设计
湖南常德李家欧式风格别墅自建房设计图纸喜天下建筑设计
湖南株洲江家农村别墅自建房设计
经典户型
湖南衡阳朱家农村别墅自建房设计
江苏南通谭家农村别墅自建房设计
北京顺义单家欧式风格别墅自建房设计图纸喜天下建筑设计
河南周口赵家农村别墅自建房设计
安徽阜阳高家农村别墅自建房设计
山东潍坊翁家农村别墅自建房设计
上海金山邬家欧式风格别墅自建房设计图纸喜天下建筑设计
安徽巢湖严家农村别墅自建房设计
我要图纸
加设计师微信 15888225025
专业的设计团队,最实惠的价格,我们为您量身定制,专属于您的房子设计。
我要施工
加设计师微信 15888225025
专业的设计团队,最实惠的价格,我们为您量身定制,专属于您的房子设计。
s.parentNode.insertBefore(_53code, s);})();