全部图纸
一层房子
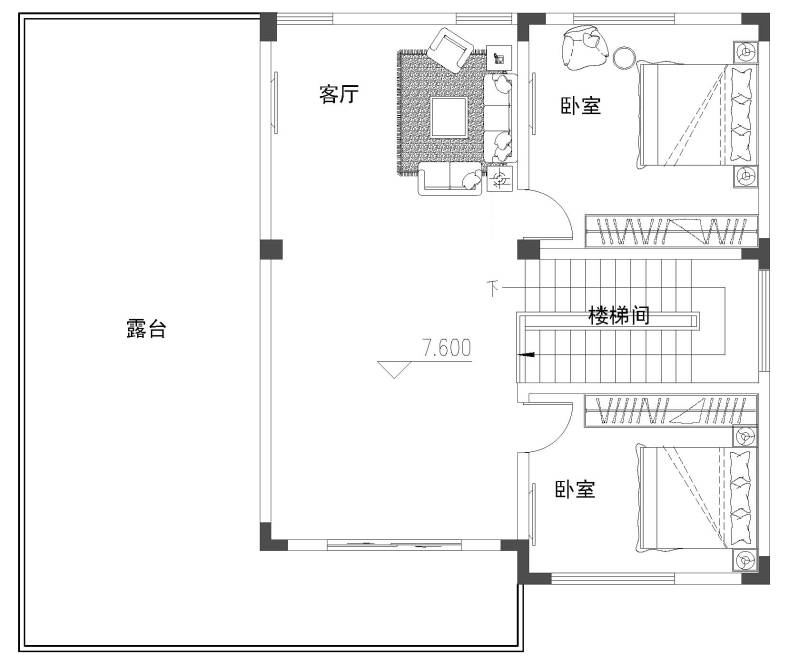
二层房子
三层房子
四层或以上
双拼房子
当前位置:
网站首页
>
图纸案例
>
案例详情
上一篇:湖南湘西童家农村别墅自建房设计
下一篇:浙江舟山林家农村别墅自建房设计
看了又看
辽宁葫芦岛倪家农村别墅自建房设计
湖南衡阳朱家农村别墅自建房设计
浙江衢州杨家农村别墅自建房设计
浙江杭州王家欧式风格别墅自建房设计图纸喜天下建筑设计
贵州铜仁冉家欧式风格别墅自建房设计图纸喜天下建筑设计
湖南常德庞家农村别墅自建房设计
江西南昌顾家农村别墅自建房设计
广东中山汪家农村别墅自建房设计
经典户型
云南德宏齐家农村别墅自建房设计
广东汕头白家农村别墅自建房设计
河北沧州白家农村别墅自建房设计
湖北孝感金家农村别墅自建房设计
海南定安丁家农村别墅自建房设计
湖南衡阳肖家新中式风格别墅自建房设计图纸喜天下建筑设计
北京大兴柳家农村别墅自建房设计
江苏连云港范家农村别墅自建房设计
我要图纸
加设计师微信 15888225025
专业的设计团队,最实惠的价格,我们为您量身定制,专属于您的房子设计。
我要施工
加设计师微信 15888225025
专业的设计团队,最实惠的价格,我们为您量身定制,专属于您的房子设计。
s.parentNode.insertBefore(_53code, s);})();