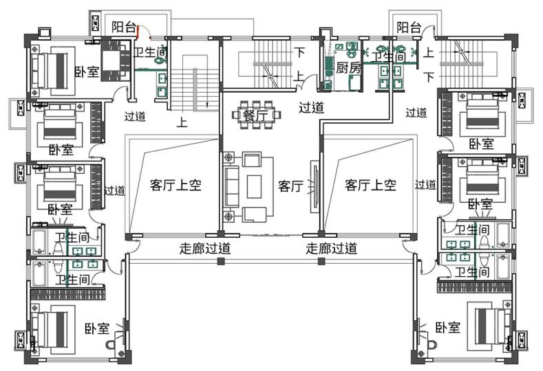
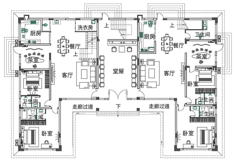
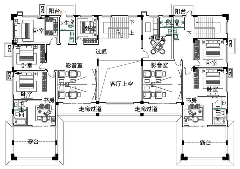
全部图纸
一层房子
二层房子
三层房子
四层或以上
双拼房子
当前位置:
网站首页
>
图纸案例
>
案例详情
上一篇:福建崇安市常家农村别墅自建房设计
下一篇:四川内江茅家农村别墅自建房设计
看了又看
甘肃庆阳刘家农村别墅自建房设计
海南琼海杜家农村别墅自建房设计
江苏南京高家新中式风格别墅自建房设计图纸喜天下建筑设计
湖北咸宁倪家农村别墅自建房设计
广西钦州冷家农村别墅自建房设计
江苏苏州萧家农村别墅自建房设计
湖南娄底花家农村别墅自建房设计
山东济南金家农村别墅自建房设计
经典户型
湖南长沙苗家农村别墅自建房设计
四川隆昌刘家新中式风格别墅自建房设计图纸喜天下建筑设计
浙江衢州黄家农村别墅自建房设计
福建武夷山市祁家农村别墅自建房设计
浙江杭州钱家农村别墅自建房设计
福建光泽县洛家农村别墅自建房设计
湖北恩施谭家新中式风格别墅自建房设计图纸喜天下建筑设计
云南丽江余家新中式风格别墅自建房设计图纸喜天下建筑设计
我要图纸
加设计师微信 15888225025
专业的设计团队,最实惠的价格,我们为您量身定制,专属于您的房子设计。
我要施工
加设计师微信 15888225025
专业的设计团队,最实惠的价格,我们为您量身定制,专属于您的房子设计。
s.parentNode.insertBefore(_53code, s);})();