全部图纸
一层房子
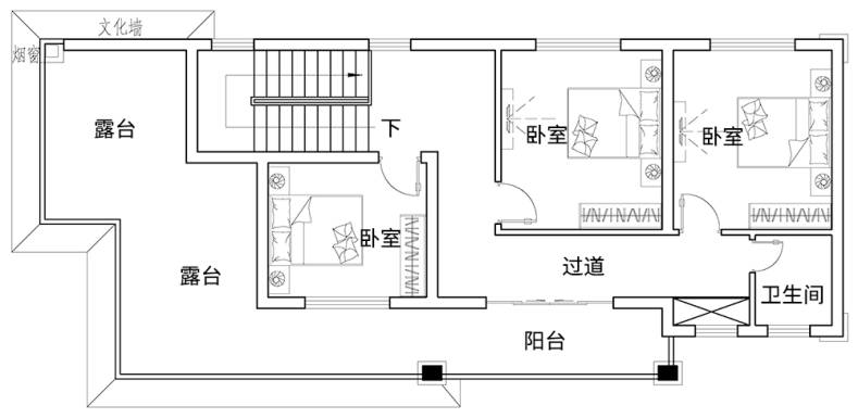
二层房子
三层房子
四层或以上
双拼房子
当前位置:
网站首页
>
图纸案例
>
案例详情
上一篇:广东湛江陆家农村别墅自建房设计
下一篇:广西贵港杨家农村别墅自建房设计
看了又看
浙江杭州王家欧式风格别墅自建房设计图纸喜天下建筑设计
江西鹰潭宁家农村别墅自建房设计
江西宜春傅家农村别墅自建房设计
湖南兴宁何家新中式风格别墅自建房设计图纸喜天下建筑设计
湖北武汉段家欧式风格别墅自建房设计图纸喜天下建筑设计
浙江杭州田家农村别墅自建房设计
四川绵阳佟家农村别墅自建房设计
湖南郴州肖家新中式风格别墅自建房设计图纸喜天下建筑设计
经典户型
湖北荆门任家农村别墅自建房设计
安徽淮北龙家农村别墅自建房设计
浙江衢州黄家农村别墅自建房设计
甘肃武威李家农村别墅自建房设计
湖南张家界聂家中式风格别墅自建房设计图纸喜天下建筑设计
广东化州吴家欧式风格别墅自建房设计图纸喜天下建筑设计
辽宁朝阳臧家农村别墅自建房设计
江苏南京任家新中式风格别墅自建房设计图纸喜天下建筑设计
我要图纸
加设计师微信 15888225025
专业的设计团队,最实惠的价格,我们为您量身定制,专属于您的房子设计。
我要施工
加设计师微信 15888225025
专业的设计团队,最实惠的价格,我们为您量身定制,专属于您的房子设计。
s.parentNode.insertBefore(_53code, s);})();