全部图纸
一层房子
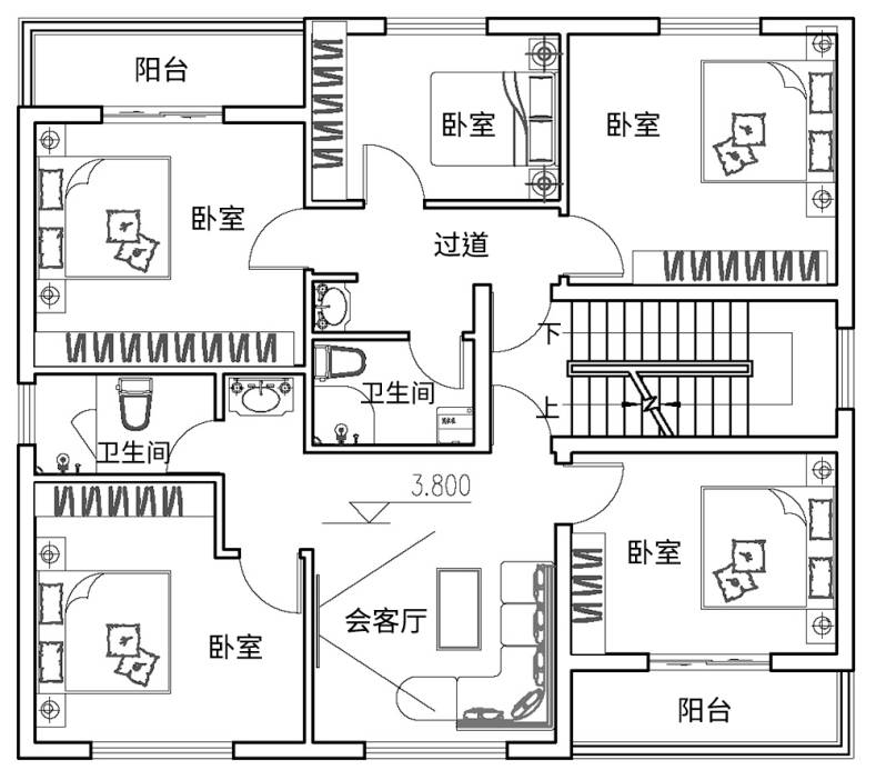
二层房子
三层房子
四层或以上
双拼房子
当前位置:
网站首页
>
图纸案例
>
案例详情
上一篇:福建邵武市陈家农村别墅自建房设计
下一篇:湖南株洲江家农村别墅自建房设计
看了又看
湖南张家界赵家农村别墅自建房设计
海南琼海杜家农村别墅自建房设计
湖北黄石汤家农村别墅自建房设计
北京延庆张家欧式风格别墅自建房设计图纸喜天下建筑设计
广西北海刘家中式风格别墅自建房设计图纸喜天下建筑设计
海南文昌王家农村别墅自建房设计
湖南娄底宋家欧式风格别墅自建房设计图纸喜天下建筑设计
河南周口赵家农村别墅自建房设计
经典户型
浙江杭州王家欧式风格别墅自建房设计图纸喜天下建筑设计
湖北咸宁陈家农村别墅自建房设计
海南定安丁家农村别墅自建房设计
北京顺义单家欧式风格别墅自建房设计图纸喜天下建筑设计
福建漳州洪家现代风格别墅自建房设计图纸喜天下建筑设计
湖南湘西秦家农村别墅自建房设计
江苏泰州金家农村别墅自建房设计
湖南湘潭冯家农村别墅自建房设计
我要图纸
加设计师微信 15888225025
专业的设计团队,最实惠的价格,我们为您量身定制,专属于您的房子设计。
我要施工
加设计师微信 15888225025
专业的设计团队,最实惠的价格,我们为您量身定制,专属于您的房子设计。
s.parentNode.insertBefore(_53code, s);})();